1,2, 615 36 Street NE, Calgary   ||   $1,932,700

DETAILS

MLS® NUMBER A2301040
BUILDING TYPE Retail
PROPERTY CLASS Commercial
YEAR BUILT 1974
BASEMENT None
GARAGE No
Welcome to Station 36!

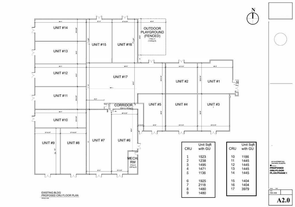
Presenting a ±2,761 sq. ft. Medical CRU for sale, perfect for a Dental Clinic. Located in a soon to be fully renovated commercial centre in Calgary. The entire building will be converted into brand new Medical and Retail CRUs for Sale.

Great and rare opportunity for owner-users/investors. Located on one of the busiest major roads in Calgary with over 35,000 VPD. Great exposure to the LRT station which is 30 seconds away. Surrounded by established residential communities and complementary businesses, this location ensures consistent traffic and long-term growth potential.

Estimated possession March 2027.
Listing Brokerage: Century 21 Bravo Realty

MAP

Listing data is deemed reliable but is not guaranteed accurate by CREB®. Last updated: today at 3:00 a.m.

© 2026 CENTURY 21 Real Estate Foothills. CENTURY 21® is a registered trademark licensed to Century 21 Real Estate LLC. Equal Housing Opportunity. Each office is independently owned and operated.

Find Real Estate Foothills on Facebook Find Real Estate Foothills on Twitter