5230 44 Avenue , Spirit River   ||   $999,900

DETAILS

MLS® NUMBER A2300850
BUILDING TYPE Multi Family
PROPERTY CLASS Commercial
YEAR BUILT 1960
BASEMENT None
GARAGE No
TOTAL PARKING 20
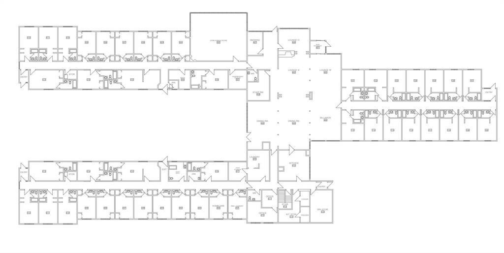
Pleasant View Lodge in Spirit River, Alberta presents a rare opportunity to acquire a well-maintained, institutional-quality 42-suite care facility situated on 2.32 acres of R4 High Density Residential land priced at only $45/sqft!. Encompassing 22,177 sq. ft., the building has seen extensive upgrades including boilers (2015), hot water tanks (2022/2023), a torch-on roof (2018), and modern double-glazed vinyl windows, offering a solid, low-risk asset base. Now vacant and ready for immediate occupancy or repositioning, the property features private bathrooms in every suite (26 with full tubs or showers), along with a commercial kitchen, expansive common areas, assisted bathing rooms, staff facilities, office space, commercial laundry, a hair salon, and a 26’ x 40’ maintenance shop. With ample parking, mature landscaping, and a quiet setting near parks and services just 50 minutes from Grande Prairie, this flexible property is ideally suited for seniors housing, assisted living, specialized care, workforce accommodation, or multi-family conversion.
Listing Brokerage: Sutton Group Grande Prairie Professionals

MAP

Listing data is deemed reliable but is not guaranteed accurate by CREB®. Last updated: today at 3:00 a.m.

© 2026 CENTURY 21 Real Estate Foothills. CENTURY 21® is a registered trademark licensed to Century 21 Real Estate LLC. Equal Housing Opportunity. Each office is independently owned and operated.

Find Real Estate Foothills on Facebook Find Real Estate Foothills on Twitter