4220 Centre Street NE, Calgary   ||   $1,095,000

DETAILS

MLS® NUMBER A2300778
BUILDING TYPE Residential Land
PROPERTY CLASS Land
Exceptional MU-1 Development Opportunity – DP Approved & Ready to Build!

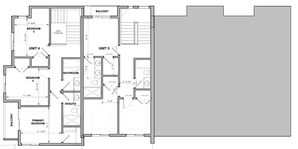
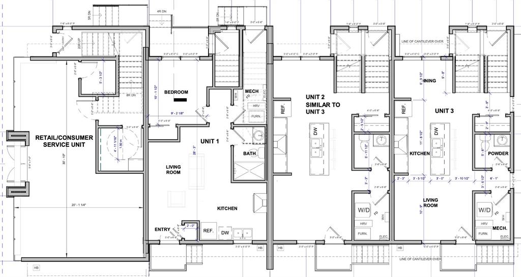
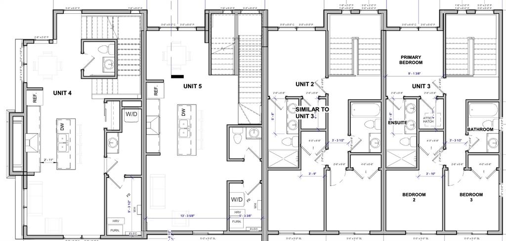
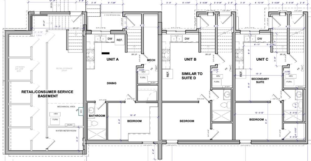
Prime inner-city CORNER LOT offering MU-1 zoning—allowing for mixed-use development with commercial at grade and up to 6 storeys (5 residential above). Positioned on a high-exposure intersection with strong street visibility, this is a rare opportunity for builders and investors to step into a fully entitled development with no delays, demolition, or uncertainty remaining.

The offering includes a fully approved Development Permit for a thoughtfully designed project featuring a 4-plex with 8 residential units plus 2 commercial spaces, along with a 4-stall carport providing convenient parking solutions. All architectural drawings, DSSP documents, and supporting planning materials are included, significantly reducing soft costs and accelerating the development timeline.

Site preparation is fully complete, including demolition, asbestos remediation, and utility removals—allowing for immediate transition to excavation and construction. This is a true ready-to-build opportunity with substantial value already invested into approvals and pre-development work.

Located in a rapidly evolving inner-city area, the site benefits from strong redevelopment momentum, surrounding investment activity, and long-term growth fundamentals. The MU-1 zoning provides exceptional flexibility for mixed-use design, making this an ideal opportunity for both experienced developers and long-term investors seeking scalable returns.

This offering includes the land, fully approved plans, permits, and all completed pre-construction work—delivering a streamlined, near turn-key development opportunity in a high-demand location. A rare chance to acquire a fully prepared project and bring it to completion.
Listing Brokerage: Jessica Chan Real Estate & Management Inc.

MAP

Listing data is deemed reliable but is not guaranteed accurate by CREB®. Last updated: today at 3:00 a.m.

© 2026 CENTURY 21 Real Estate Foothills. CENTURY 21® is a registered trademark licensed to Century 21 Real Estate LLC. Equal Housing Opportunity. Each office is independently owned and operated.

Find Real Estate Foothills on Facebook Find Real Estate Foothills on Twitter