3190, 28 Kingsview Road SE, Airdrie   ||   $2,700,000

DETAILS

MLS® NUMBER A2299336
BUILDING TYPE Retail
PROPERTY CLASS Commercial
YEAR BUILT 2019
BASEMENT None
GARAGE No
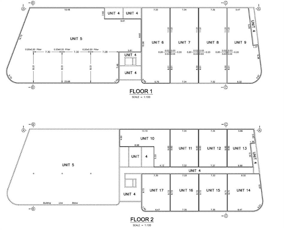
Rare opportunity to purchase a 6,235 sq. ft. shell condominium unit in a prime Airdrie location with excellent visibility from the QE2 and convenient access from Yankee Valley Blvd. This versatile commercial space offers ample parking, 24-foot ceiling height, and outstanding potential for a variety of permitted uses.
A major feature of the property is the existing City approval for a second floor, allowing for expansion to approximately 10,000 sq. ft. The current owner also has approval in place for restaurant use, creating an excellent opportunity for hospitality, retail, office, or other commercial ventures. The generous ceiling height allows the option to add additional floor area or maintain an open-concept layout with the potential for impressive floor-to-ceiling glass.

Zoned IB-1, this unit offers flexibility for a range of commercial and employment uses. A strong opportunity for owner-users, investors, or developers seeking exposure, accessibility, and future upside in one of Airdrie’s key commercial corridors. Electrical power is 400A, 208/120V, 3 Phase, 4 wire (TBV). Condominium parking area includes a ratio of 4.1 parking stalls per 1,000sf.
Listing Brokerage: CIR Realty

MAP

Listing data is deemed reliable but is not guaranteed accurate by CREB®. Last updated: today at 3:00 a.m.

© 2026 CENTURY 21 Real Estate Foothills. CENTURY 21® is a registered trademark licensed to Century 21 Real Estate LLC. Equal Housing Opportunity. Each office is independently owned and operated.

Find Real Estate Foothills on Facebook Find Real Estate Foothills on Twitter