3805 14 Avenue N, Lethbridge   ||   $12

DETAILS

MLS® NUMBER A2296586
BUILDING TYPE Industrial
PROPERTY CLASS Commercial
YEAR BUILT 2005
BASEMENT None
GARAGE No
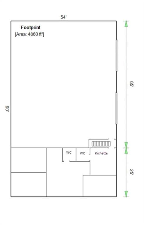
Located in the Churchill Industrial park with easy access to 43 Street North via 14 Avenue North. With efficient road access and a location designed to accommodate industrial traffic, the site is well suited for contractors, service-based businesses, and light industrial users. This stand-alone industrial building offers a 0.5-acre, fully paved site, suitable for a variety of users. The available premises include the main floor office, shop space, and secured yard area. The landlord retains the mezzanine office area and the south half of the front parking. The property features a fully fenced and gated yard, with both front and rear storm drains. The shop area offers 18’ ceiling heights, radiant heating, LED lighting, a floor drain, and two oversized 24’x14’ overhead doors. The office component has modern finishes and includes three private offices, a large front reception area, a lunchroom or boardroom with kitchenette, and two washrooms. This property is well suited for industrial users seeking a stand-alone facility with functional mix of shop space, yard space, and modern office.
Listing Brokerage: AVISON YOUNG

MAP

Listing data is deemed reliable but is not guaranteed accurate by CREB®. Last updated: today at 3:00 a.m.

© 2026 CENTURY 21 Real Estate Foothills. CENTURY 21® is a registered trademark licensed to Century 21 Real Estate LLC. Equal Housing Opportunity. Each office is independently owned and operated.

Find Real Estate Foothills on Facebook Find Real Estate Foothills on Twitter