6 Elgin Meadows Gardens SE, Calgary   ||   $489,900

DETAILS

MLS® NUMBER A2295844
BUILDING TYPE Semi Detached (Half Duplex)
PROPERTY CLASS Residential
TOTAL BEDROOMS 2
BATHROOMS 3
HALF BATHS 1
SQUARE FOOTAGE 1136 Square Feet
YEAR BUILT 2010
BASEMENT None
GARAGE No
TOTAL PARKING 2
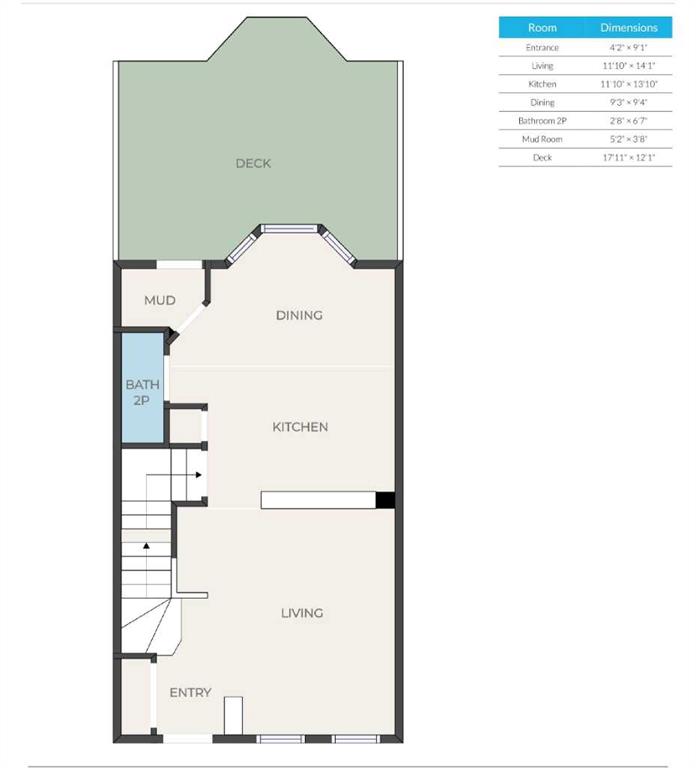
Located on a quiet street in the SE corner of McKenzie Towne, this home is a short walk from shopping, parks and the McKenzie Towne bus terminal. Main floor offers a bright, open layout with new LVP flooring throughout. The living room has large windows bringing in plenty of natural light, a gas fireplace with mantle and TV ledge. The kitchen includes full-height cabinetry, ample counter space, tile backsplash, and a raised eating bar overlooking the living room. Stainless steel dishwasher, OTR microwave and stove are newer. Adjacent dining nook is positioned in a bay window setting with backyard views.
Convenient main floor 2-piece bath plus a functional rear mudroom with built-in storage provides access to the deck and yard. The yard is large with raised garden bed ready for your green thumb. Plenty of space beyond the yard for a future double garage.
The second floor configuration offers options for a young couple or roommates. The front primary bedroom includes a walk-in closet and 4-piece ensuite. Rear bedroom is slightly smaller and also has a full ensuite and walkin closet. Unfinished basement offers excellent potential for future development, with a wide open layout ready to be customized to your needs. Currently set up with a dedicated workshop area complete with (negotiable) workbench and storage, plus plenty of additional space for recreation, home gym, or added bedrooms. Mechanical and laundry areas are neatly organized and easily accessible, with rough-in plumbing already in place for a future bathroom.
Listing Brokerage: RE/MAX Complete Realty

MAP

Listing data is deemed reliable but is not guaranteed accurate by CREB®. Last updated: today at 3:00 a.m.

© 2026 CENTURY 21 Real Estate Foothills. CENTURY 21® is a registered trademark licensed to Century 21 Real Estate LLC. Equal Housing Opportunity. Each office is independently owned and operated.

Find Real Estate Foothills on Facebook Find Real Estate Foothills on Twitter