4009 15A Street SW, Calgary   ||   $1,549,000

DETAILS

MLS® NUMBER A2295253
BUILDING TYPE Semi Detached (Half Duplex)
PROPERTY CLASS Residential
TOTAL BEDROOMS 5
BATHROOMS 5
HALF BATHS 1
SQUARE FOOTAGE 2807 Square Feet
YEAR BUILT 2026
BASEMENT None
GARAGE Yes
TOTAL PARKING 2
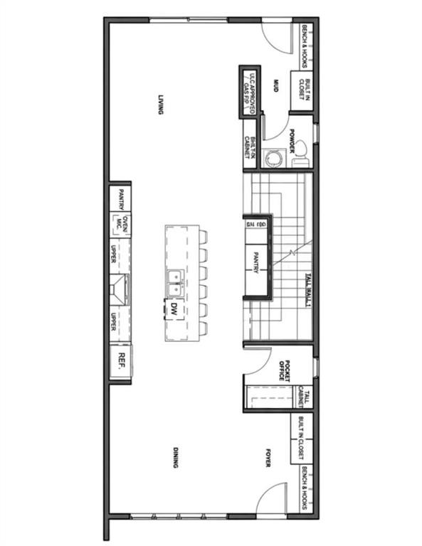
This gorgeous three-story duplex on a premier Altadore street offers an expansive floor plan meticulously designed for modern living. This build features two curated color palettes—light and dark. Please refer to photos of the builder\'s previous builds for a preview of both finish styles. The main level welcomes you with a formal foyer and an elegant dining room that flows into a chef-inspired kitchen featuring a massive quartz island, a walk-in pantry, and a dedicated pocket office—perfect for working from home. Relax in the sun-filled living room anchored by a sleek gas fireplace, which leads into a functional rear mudroom and a conveniently located powder room.

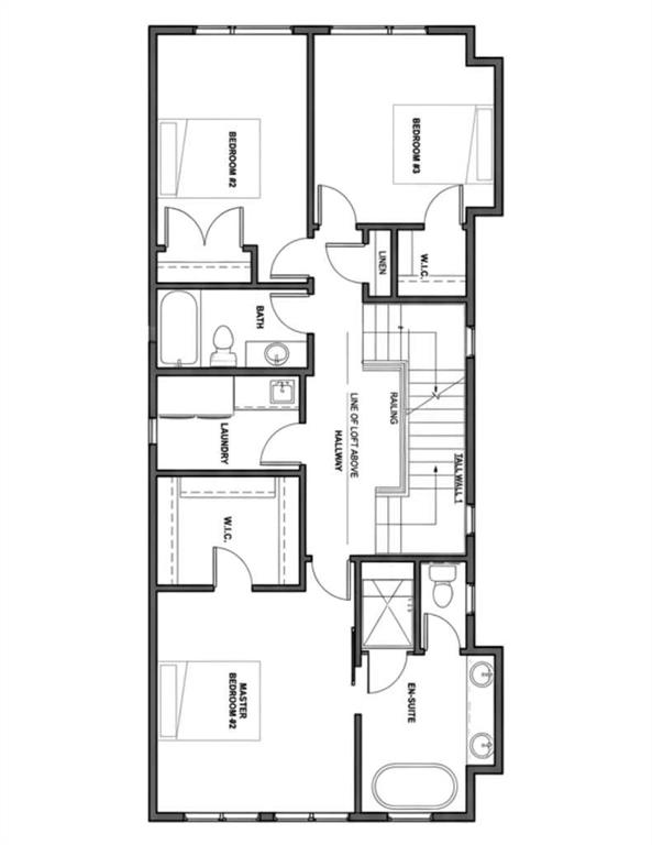
The second level is thoughtfully laid out with three bedrooms and a separate laundry room. This floor includes a spacious secondary master bedroom with its own private ensuite bath and walk-in closet, a second bedroom also featuring a walk-in closet, and a versatile third bedroom.

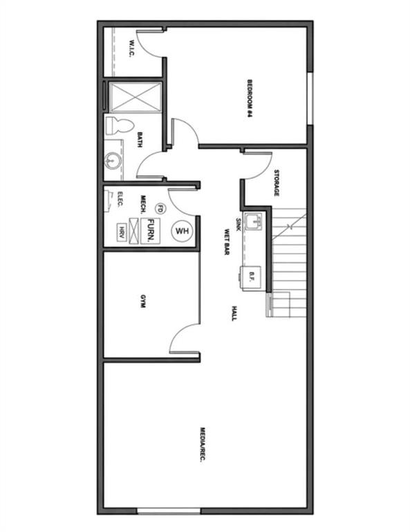
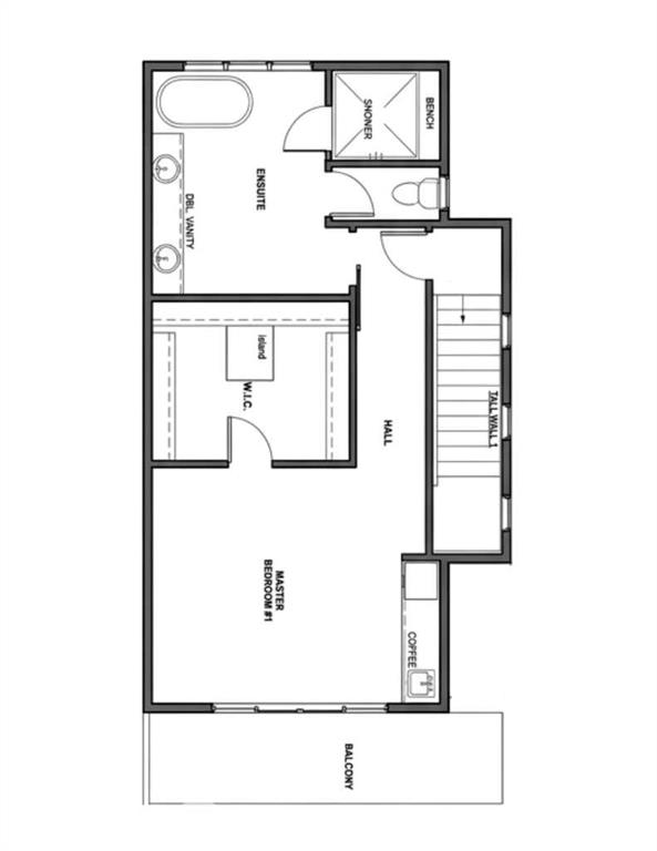
Highlighting the home\'s unique design, the entire third floor is a private primary retreat, offering ultimate seclusion with a private balcony, a massive walk-in closet with its own center island, and a spa-like ensuite featuring a deep soaker tub, double vanity, and custom shower. The fully developed basement adds even more value with a dedicated home gym, a spacious media room, a stylish wet bar, a fifth bedroom, and ample storage. This stunning property blends luxury and function, situated just steps from the vibrant shops of Marda Loop, top-tier schools, and local parks.
Listing Brokerage: eXp Realty

MAP

Listing data is deemed reliable but is not guaranteed accurate by CREB®. Last updated: today at 3:00 a.m.

© 2026 CENTURY 21 Real Estate Foothills. CENTURY 21® is a registered trademark licensed to Century 21 Real Estate LLC. Equal Housing Opportunity. Each office is independently owned and operated.

Find Real Estate Foothills on Facebook Find Real Estate Foothills on Twitter