106 Centre Street SE, High River   ||   $599,900

DETAILS

MLS® NUMBER A2294868
BUILDING TYPE Commercial Land
PROPERTY CLASS Land
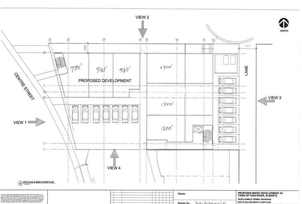
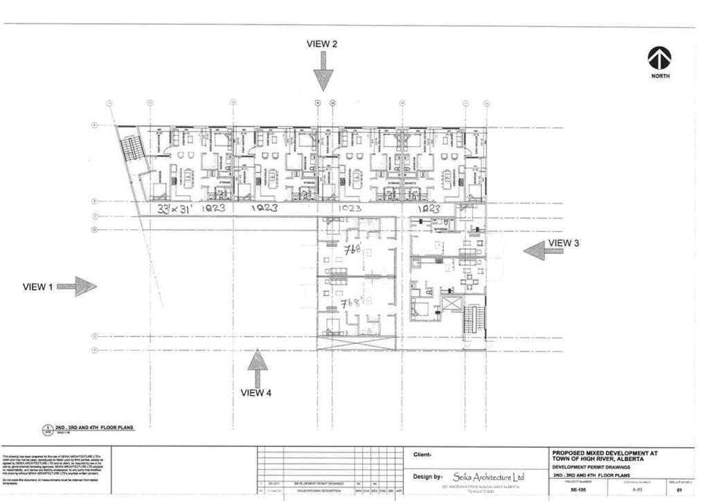
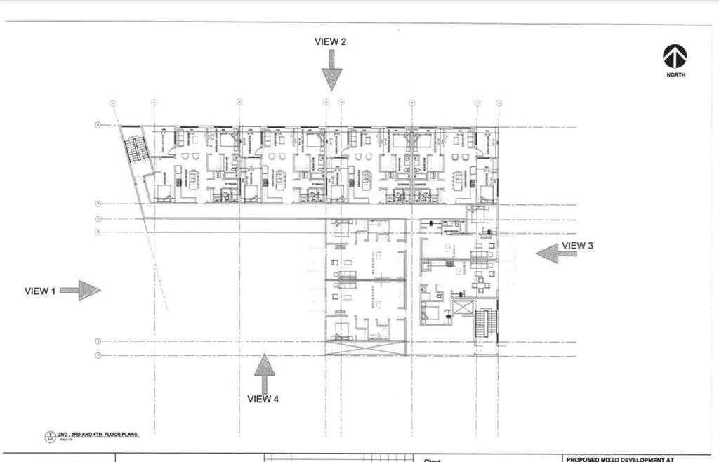
Prime downtown High River development opportunity at 106 Centre Street SE. Located in the Central Business District (CBD), this high-visibility commercial parcel offers exceptional potential for retail, office, restaurant, mixed-use, residential above commercial, and other approved downtown uses. Titled land area of approximately 1,545 sq. m., legally described as Plan 2245E, Block 8, Lots 1–4. A rare chance to secure a strategic site in High River’s core with strong future development potential. Permitted uses and development requirements can be checked with the Town of High River.
Listing Brokerage: Grand Realty

MAP

Listing data is deemed reliable but is not guaranteed accurate by CREB®. Last updated: today at 3:00 a.m.

© 2026 CENTURY 21 Real Estate Foothills. CENTURY 21® is a registered trademark licensed to Century 21 Real Estate LLC. Equal Housing Opportunity. Each office is independently owned and operated.

Find Real Estate Foothills on Facebook Find Real Estate Foothills on Twitter