1222 Allowance Avenue SE, Medicine Hat   ||   $8

DETAILS

MLS® NUMBER A2294258
BUILDING TYPE Mixed Use
PROPERTY CLASS Commercial
YEAR BUILT 1956
BASEMENT None
GARAGE No
TOTAL PARKING 100
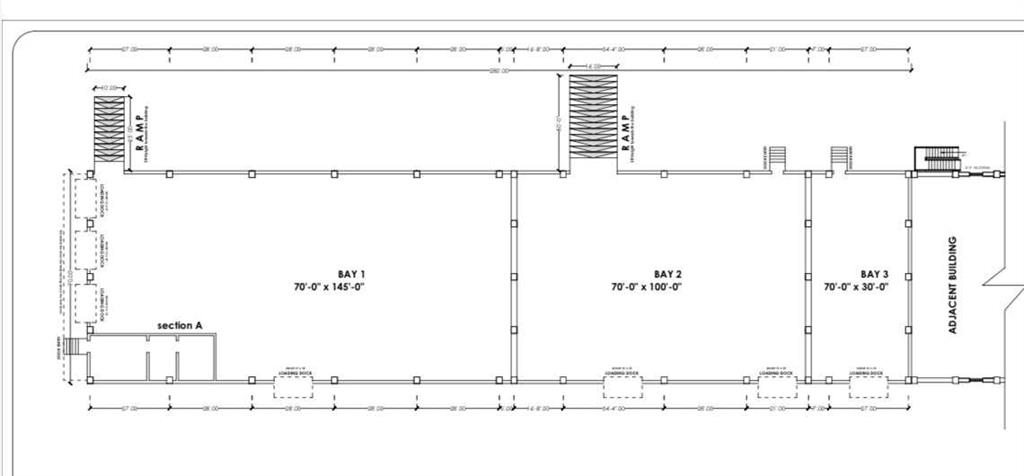
Phase 1 Redevelopment Opportunity – Build-to-Suit Lease Spaces
Position your business in one of Medicine Hat’s most visible and flexible new commercial redevelopment opportunities. Phase 1 offers build-to-suit lease spaces ranging from approximately 2,100 sq. ft. to 19,250 sq. ft., ideally suited for a wide variety of commercial uses.
Centrally located on a major intersection with high traffic counts, heavy truck route, this high-exposure site offers outstanding accessibility, visibility, and convenience for customers, staff, and suppliers alike. Designed with flexibility in mind, the development can accommodate retail, office, service commercial, showroom, light industrial, and other user-specific concepts and an impressive 600V 3 phase power supply is available.
The building design features open-span construction with 20 foot ceiling heights, creating a bright, spacious environment with excellent functional flexibility. The generous vertical clearance also provides potential for mezzanine development, allowing tenants to maximize usable space and customize layouts to suit their operational needs.
A major advantage of this opportunity is the ability to bring your ideas and work directly with the developer to create a space tailored to your business. Whether you need a customer-facing commercial unit, warehouse functionality, additional storage, or a combination of indoor and outdoor use, the site offers the flexibility to deliver. There is also potential for a substantial parking lot or mixed yard/parking configuration, ideal for businesses requiring customer parking, fleet storage, or equipment access.
This is a rare opportunity to secure space in a prominent central location while helping shape the final design and functionality from the ground up.
Listing Brokerage: GRASSROOTS REALTY GROUP

MAP

Listing data is deemed reliable but is not guaranteed accurate by CREB®. Last updated: today at 3:00 a.m.

© 2026 CENTURY 21 Real Estate Foothills. CENTURY 21® is a registered trademark licensed to Century 21 Real Estate LLC. Equal Housing Opportunity. Each office is independently owned and operated.

Find Real Estate Foothills on Facebook Find Real Estate Foothills on Twitter