11407 95 Street , Clairmont   ||   $379,900

DETAILS

MLS® NUMBER A2294112
BUILDING TYPE Semi Detached (Half Duplex)
PROPERTY CLASS Residential
TOTAL BEDROOMS 3
BATHROOMS 3
HALF BATHS 1
SQUARE FOOTAGE 1232 Square Feet
YEAR BUILT 2026
BASEMENT None
GARAGE Yes
TOTAL PARKING 2
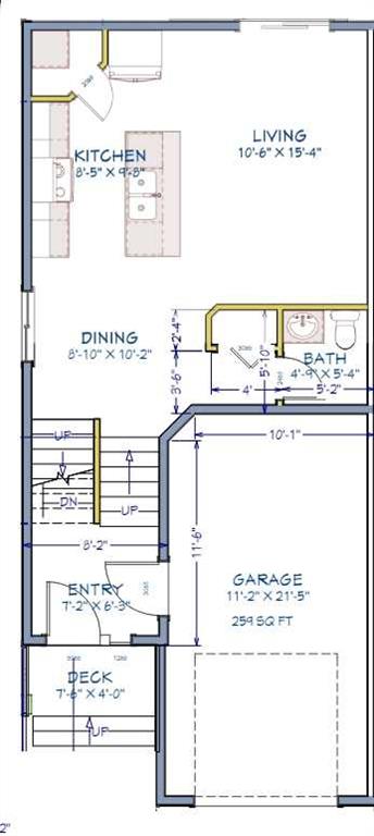
THE NEW PARKER LUXURY DUPLEX IS UNDER CONSTRUCTION AND BACKING ONTO AN EASEMENT, August 2026 possession! -! Modern Luxury 3 bed 2.5 bath Duplex featuring a new design with the Master Bedroom retreat over the garage, up a few more stairs you will find 2 more bedrooms, the main bathroom and the laundry room that accommodates a side by side washer dryer. The contemporary exterior will keep you impressed every time you pull into the driveway. Come on in and be amazed by the incredible kitchen featuring quartz counters, tile back splash, pendant lighting, soft close shaker style cabinets, real wood soft close drawers and Valhalla barn wood vinyl plank flooring. We know storage is important so we included a huge corner pantry. The gorgeous kitchen is finished off with Stainless Steel kitchen appliances. The main floor features an open concept layout throughout the kitchen, living room and dining room and features a handy power room 1/2 bathroom right by the entry. Built-in savings with energy efficiency include hot water on demand, high-efficiency furnace, low-e argon filled double paned windows, LED lighting and LIFETIME fiberglass shingles. The basement is unfinished and ready for your imagination to create the space of your dreams and can accomdate 2 bedrooms and a full bathroom. The 11\' by 21\' garage is dry-walled insulated and fire taped and has a wifi enabled garage door opener. Clairmont has many kids parks, miles of walking trails and an award winning K-8 primary school and low county taxes, estimated on this home to be $2409 per year. Put your deposit down and reserve (Pictures and renderings are samples from previous builds, please request spec sheet and renderings as per address)
Listing Brokerage: Sutton Group Grande Prairie Professionals

MAP

Listing data is deemed reliable but is not guaranteed accurate by CREB®. Last updated: today at 3:00 a.m.

© 2026 CENTURY 21 Real Estate Foothills. CENTURY 21® is a registered trademark licensed to Century 21 Real Estate LLC. Equal Housing Opportunity. Each office is independently owned and operated.

Find Real Estate Foothills on Facebook Find Real Estate Foothills on Twitter