105, 3720 Quesnay Wood Drive SW, Calgary   ||   $785,000

DETAILS

MLS® NUMBER A2291689
BUILDING TYPE Row/Townhouse
PROPERTY CLASS Residential
TOTAL BEDROOMS 3
BATHROOMS 3
HALF BATHS 1
CONDO FEES 442
CONDO_FEE_INCL Common Area Maintenance,Reserve Fund Contributions
SQUARE FOOTAGE 1417 Square Feet
YEAR BUILT 2027
BASEMENT None
GARAGE Yes
TOTAL PARKING 2
Luxurious Townhome in Currie Barracks - A Legacy of Distinction

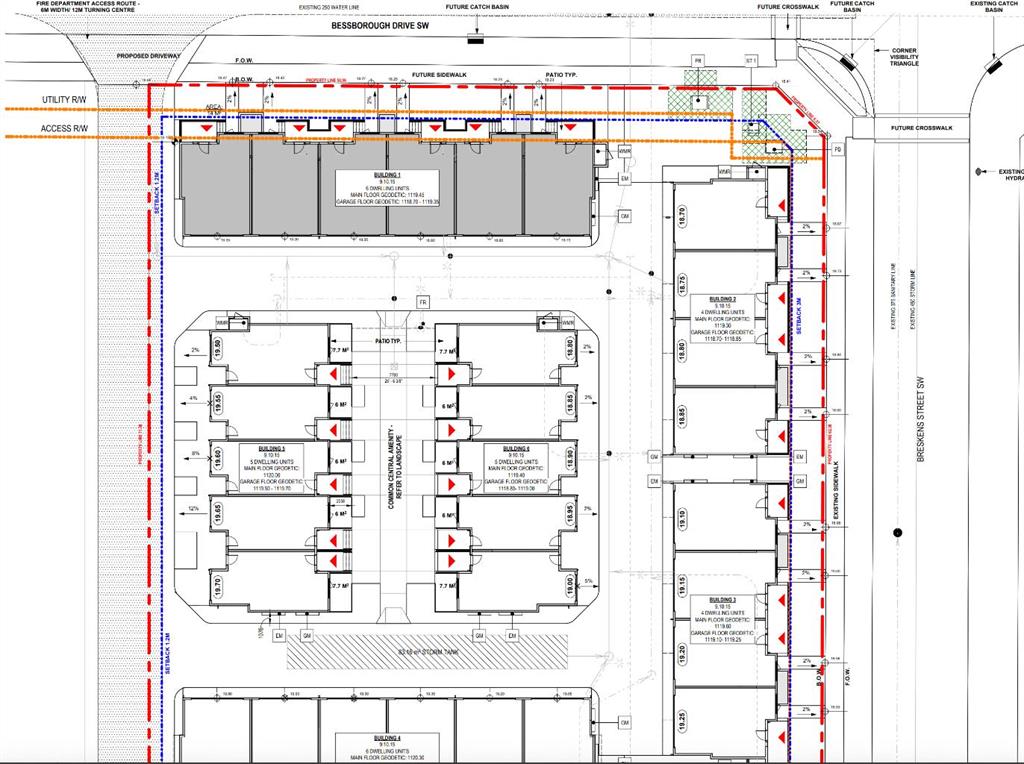
ONE OF 30 LUXURY TOWN HOMES IN CURRIE BARRACKS. Welcome to an exquisite townhome nestled within the prestigious Nichola community in Currie Barracks. This master-planned intercity neighborhood is just 7 minutes from downtown, providing effortless access to an array of exceptional dining, shopping, and cultural attractions.

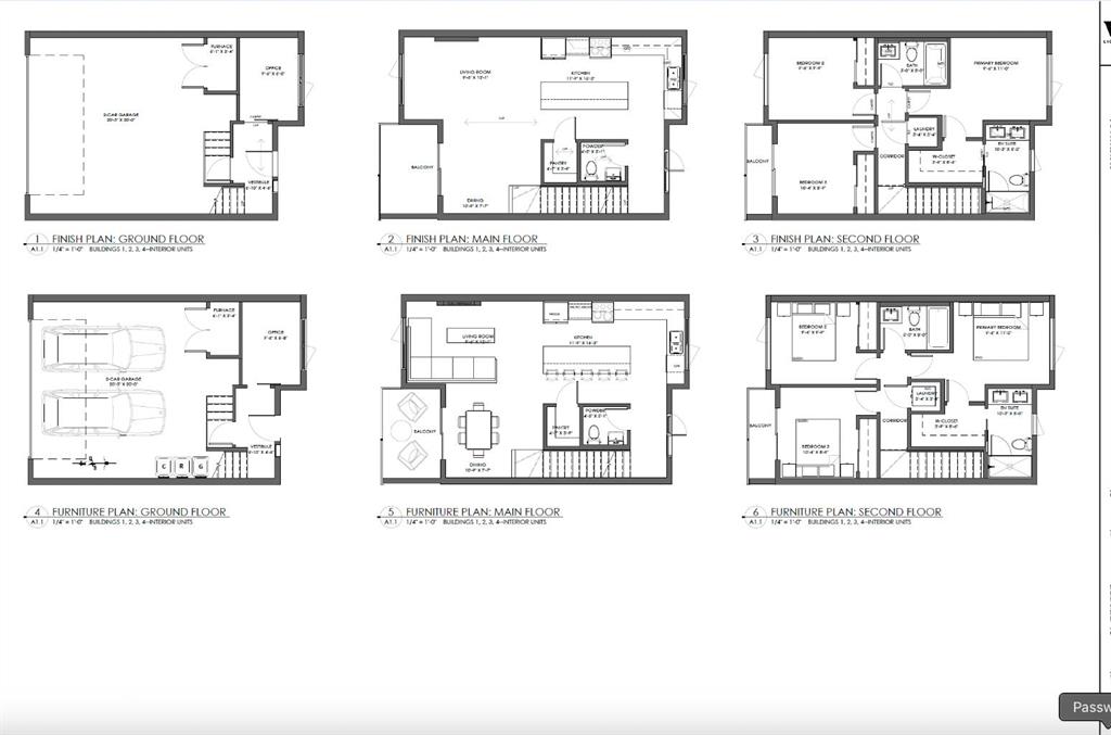
Spanning 1,417 sq. ft., this thoughtfully designed residence features 3 bedrooms, 2.5 baths, and a nice open concept floor plan, ensuring ample space for both relaxation and productivity. The home boasts 9-foot ceilings on every level, creating a sense of grandeur and openness that invites natural light to flow seamlessly throughout.

The heart of the home is a gourmet kitchen, complete with an OVERSIZED GRAND ISLAND (10’0) complete with STYLISH PREMIUM QUARTZ BACKSPLASH & COUNTER TOPS. Ideal for culinary enthusiasts and entertaining guests. Luxurious finishes abound, including PREMIUM MILLWORK, knockdown ceilings, and a sophisticated STUCCO EXTERIOR accented by elegant brick veneer.

The bathrooms elevate the home\'s luxury with MIRRORS THAT STRETCH TO THE CEILING, enhancing the sense of space and sophistication. Thoughtfully equipped with rough-ins for AIR CONDITIONING & SOLAR PANEL, and an ATTACHED TWO CAR GARAGE, the home also includes upgrade options for convenient EV CHARGING rough-ins for modern convenience.

Step outside to enjoy serene outdoor living on the DURADEK-FINSHED BALCONIES or gather around the IMPRESSIVE 42” LANDSCAPE FIREPLACE for cozy evenings under the stars. The residence is outfitted with luxurious finishes such as 8-FOOT DOORS, 4-INCH. BASEBOARD, 3” CASINGS, ensuring a refined aesthetic throughout. Buyers can also choose from TWO ELEGANT PALLETTES; THE CALIGA OR LAMBENT allowing for personalization to match your style.

Living in Currie Barracks means embracing a community that honors the legacy of Canadian heros such as Captain Nicola Kathleen Sarah Goddard, after whom the NICHOLA TOWNHOMES project is named. This historic neighborhood beautifully blends tradition with modernity, offering immediate access to a nearby dog park, top-tier charter and private schools, and Mount Royal University—making it ideal for families and professionals alike.

Indulge in a rich tapestry of cultural experiences, from art galleries to fine dining, all just moments away. This luxurious townhome is more than just a residence; it embodies a lifestyle of elegance, community, and honor.

Don’t miss the opportunity to make this remarkable home yours. Schedule a private viewing today and immerse yourself in the luxury and legacy that awaits at Nichola

Listing Brokerage: Real Broker

MAP

Listing data is deemed reliable but is not guaranteed accurate by CREB®. Last updated: today at 3:00 a.m.

© 2026 CENTURY 21 Real Estate Foothills. CENTURY 21® is a registered trademark licensed to Century 21 Real Estate LLC. Equal Housing Opportunity. Each office is independently owned and operated.

Find Real Estate Foothills on Facebook Find Real Estate Foothills on Twitter