316 Flare Avenue SW, Diamond Valley   ||   $807,450

DETAILS

MLS® NUMBER A2287940
BUILDING TYPE Detached
PROPERTY CLASS Residential
TOTAL BEDROOMS 4
BATHROOMS 3
HALF BATHS 1
SQUARE FOOTAGE 1798 Square Feet
YEAR BUILT 2026
BASEMENT None
GARAGE Yes
TOTAL PARKING 4
For more information, please click the \"More Information\" button.
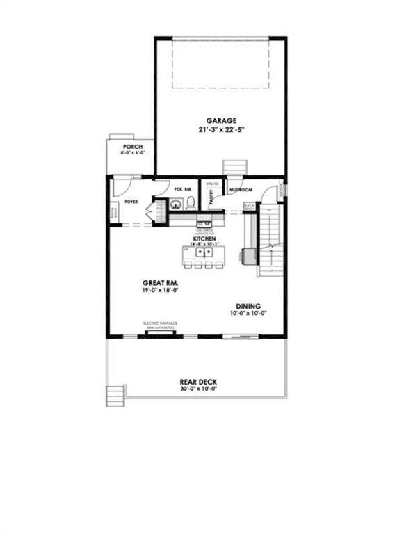
Welcome to Lot 42 at 316 Flare Avenue SW in the thoughtfully planned community of Diamond Ridge in Diamond Valley. The Kincaid 4 custom home offers refined two-storey living with a smart, family-focused layout, abundant natural light, and carefully selected finishes that balance function and style. This distinctive four-bedroom, 2.5-bathroom home offers 1,798.4 sq. ft. of developed living space, including 750.6 sq. ft. on the main level and 1,047.8 sq. ft. on the upper level, plus an undeveloped basement providing excellent opportunity for future customization. Large windows throughout create a bright and welcoming atmosphere, while the layout feels open yet thoughtfully defined—ideal for both everyday living and entertaining. The main floor features 9’ ceilings and a seamless connection between the Great Room, dining area, and kitchen. The kitchen is anchored by a large island with breakfast bar and complemented by stone countertops, soft-close cabinetry, a premium LG appliance package, and a convenient pantry for added storage. The foyer offers a welcoming entry point, while a well-designed mudroom with direct access to the attached garage enhances daily convenience. A main floor half bathroom completes this level. Upstairs, 8’ ceilings with engineered wood truss construction create a clean and functional upper level. The second floor features four bedrooms, including a spacious primary retreat with a four-piece ensuite and walk-in closet. A three-piece bathroom serves the additional bedrooms, offering comfortable accommodation for family or guests. The home also benefits from rear lane access, adding flexibility and long-term practicality. Situated in Diamond Ridge, residents enjoy close proximity to local shops, cafés, schools, parks, pathway systems, and access to the Sheep River and regional trail networks. Convenient connections to Okotoks and south Calgary provide an ideal balance of small-town charm and accessibility. Estimated completion is scheduled for Summer 2026. Photos are for illustrative purposes only.
Listing Brokerage: Easy List Realty

MAP

Listing data is deemed reliable but is not guaranteed accurate by CREB®. Last updated: today at 3:00 a.m.

© 2026 CENTURY 21 Real Estate Foothills. CENTURY 21® is a registered trademark licensed to Century 21 Real Estate LLC. Equal Housing Opportunity. Each office is independently owned and operated.

Find Real Estate Foothills on Facebook Find Real Estate Foothills on Twitter