106, 11039 78 Avenue , Grande Prairie   ||   $11

DETAILS

MLS® NUMBER A2286837
BUILDING TYPE Office
PROPERTY CLASS Commercial
YEAR BUILT 1981
BASEMENT None
GARAGE No
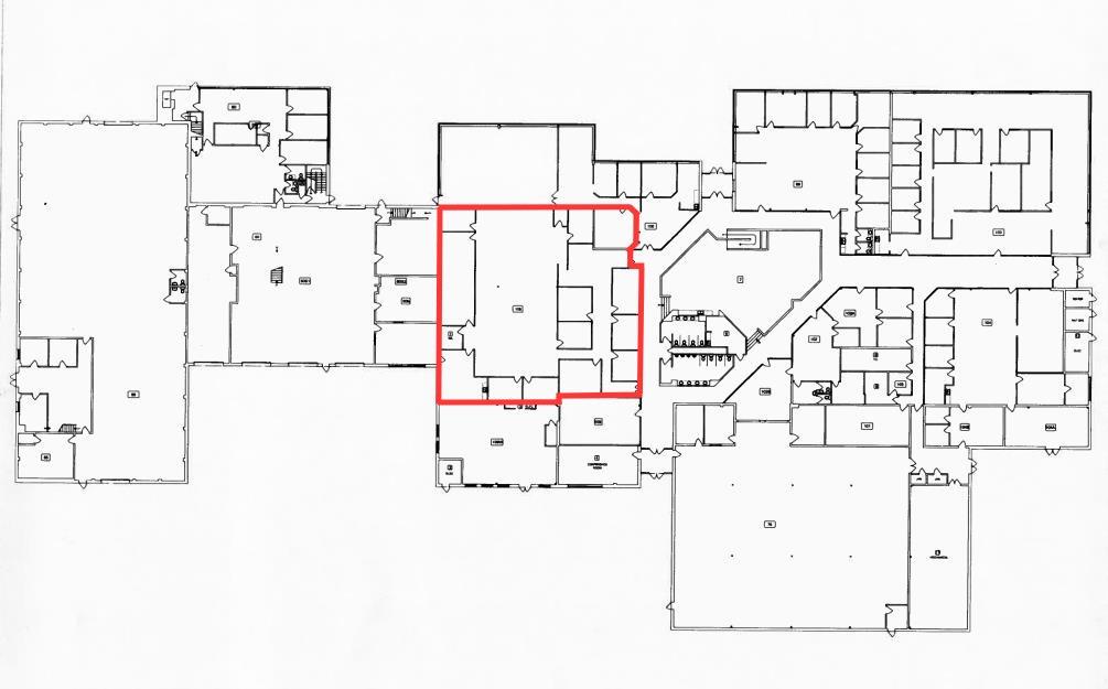
IMMEDIATE POSSESSION! This 6283 sq. ft. professional office space is located in the Swan Business Centre, in the heart of the Richmond Industrial Park, with easy access to Highway 40. The layout features 10 offices, an extra large flex space for multiple office pods & more, a large board room and a kitchenette in the private lunch room. Tenants also have access to the building’s central common-area amenity hub, featuring a kitchenette, shared seating, and a games area—ideal for breaks or informal meetings. The building has a convenient exterior entrance directly adjacent to the space, and the complex offers plenty of parking, along with the option to add outdoor storage—perfect for businesses looking for extra exterior space to complement their office needs. Turn-key and ready for immediate occupancy, this space offers an excellent opportunity to establish or grow your business. BASE RENT: $11/sq ft ($5,759.41) + ADDITIONAL RENT: $9.01/sq ft. ($4,717.48) TOTAL RENT: $10,476.89 + GST. Utilities included. Contact your Commercial Realtor today to arrange a viewing!

Listing Brokerage: Grassroots Realty Group Ltd.

MAP

Listing data is deemed reliable but is not guaranteed accurate by CREB®. Last updated: today at 3:00 a.m.

© 2026 CENTURY 21 Real Estate Foothills. CENTURY 21® is a registered trademark licensed to Century 21 Real Estate LLC. Equal Housing Opportunity. Each office is independently owned and operated.

Find Real Estate Foothills on Facebook Find Real Estate Foothills on Twitter