404 Lakewood Drive , Strathmore   ||   $825,000

DETAILS

MLS® NUMBER A2282540
BUILDING TYPE Detached
PROPERTY CLASS Residential
TOTAL BEDROOMS 4
BATHROOMS 3
SQUARE FOOTAGE 2462 Square Feet
YEAR BUILT 2026
BASEMENT None
GARAGE Yes
TOTAL PARKING 4
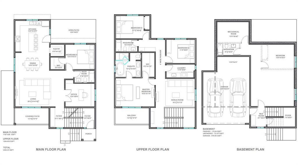
Welcome to 404 Lakewood Drive, a future build by Dhaduk Homes backing onto the canal in Lakewood. This 2,462 sq ft reverse walkout is thoughtfully designed for growing families who value light, views, and flexibility.

Step into a bright main floor where expansive windows frame the living room and fireplace. A spacious office, full bath, and bedroom with walk in closet offer versatility for guests or multi generational living. The open dining area flows into a beautifully designed kitchen with a large island and access to the east facing patio overlooking the water.

Upstairs, a west facing bonus room and primary bedroom captures stunning views over the ponds and lake, extending to the Rocky Mountains and beyond. The primary retreat features its own private balcony, walk in closet, and elegant five piece ensuite. Two additional bedrooms, a full bath, and a large laundry room with sink complete the upper level.

The reverse walkout basement includes a 19 x 23 garage, finished mudroom, mechanical room, and future development space with two large windows. Whether for additional family living or a home based business, this layout grows with you.

A rare opportunity to build backing onto the canal with elevated craftsmanship, intentional design, and breathtaking water and mountain views.
Listing Brokerage: CIR Realty

MAP

Listing data is deemed reliable but is not guaranteed accurate by CREB®. Last updated: today at 3:00 a.m.

© 2026 CENTURY 21 Real Estate Foothills. CENTURY 21® is a registered trademark licensed to Century 21 Real Estate LLC. Equal Housing Opportunity. Each office is independently owned and operated.

Find Real Estate Foothills on Facebook Find Real Estate Foothills on Twitter