400 Lakewood Drive , Strathmore   ||   $835,000

DETAILS

MLS® NUMBER A2281853
BUILDING TYPE Detached
PROPERTY CLASS Residential
TOTAL BEDROOMS 4
BATHROOMS 3
SQUARE FOOTAGE 2531 Square Feet
YEAR BUILT 2026
BASEMENT None
GARAGE Yes
TOTAL PARKING 5
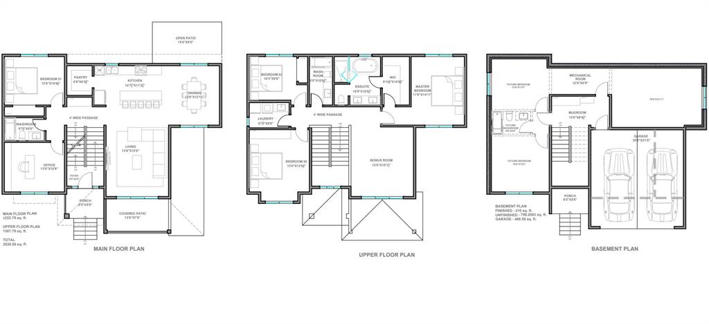
Welcome to 400 Lakewood Drive, a future build by Dhaduk Homes, perfectly positioned as a reverse walkout backing onto the canal. Thoughtfully designed to capture east morning light and west sunset views over the pond and lake out to the mountains, this home blends everyday function with elevated living.

Step inside to a light filled kitchen where a large island becomes the natural gathering place. A generous walk in pantry keeps everything tucked away, while the dining room is wrapped in windows and opens to an east facing patio overlooking the canal—a space where mornings feel calm and connected to nature.

The spacious living room, anchored by a fireplace, opens onto a covered west facing patio with sweeping pond and lake views. Down the hall, a bedroom on the east side, a four piece bath, and a west facing office provide flexibility for guests, family, or working from home.

Upstairs, a large west facing bonus room captures stunning views over the ponds and lake, extending to the Rocky Mountains and beyond. The primary suite, with windows on both east and west sides overlooking the ponds, lake, and mountains, offers a spacious walk in closet and a spa inspired five piece ensuite designed for true unwinding. Two additional bedrooms, a four piece bath, and a dedicated laundry room complete the upper level.

The reverse walkout basement includes a finished mudroom and open space ready for your future vision, whether for additional family living or a home based business. A 20 x 21 garage adds everyday convenience.

400 Lakewood Drive is an opportunity to build with intention, backing onto water, surrounded by breathtaking views, and finished with the craftsmanship and care you expect from Dhaduk Homes.
Listing Brokerage: CIR Realty

MAP

Listing data is deemed reliable but is not guaranteed accurate by CREB®. Last updated: today at 3:00 a.m.

© 2026 CENTURY 21 Real Estate Foothills. CENTURY 21® is a registered trademark licensed to Century 21 Real Estate LLC. Equal Housing Opportunity. Each office is independently owned and operated.

Find Real Estate Foothills on Facebook Find Real Estate Foothills on Twitter