5016 50 Street , Eckville   ||   $425,000

DETAILS

MLS® NUMBER A2276336
BUILDING TYPE Mixed Use
PROPERTY CLASS Commercial
YEAR BUILT 1977
BASEMENT None
GARAGE No
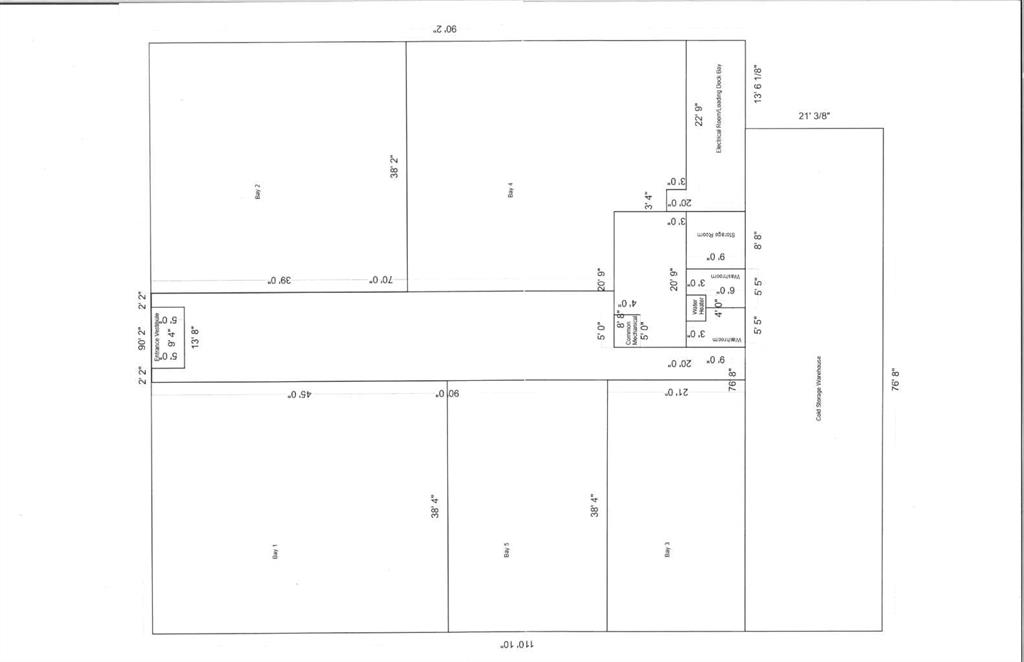
Well-located strip mall in the community of Eckville offering 9,682 sq. ft. divided into five individual bays. Situated on a 90 ft x 130 ft lot, this property benefits from strong exposure and convenient access within town. The building has been recently renovated, providing updated finishes and systems that appeal to both tenants and owner-occupiers.
Eckville is located approximately 24 km west of Sylvan Lake, making it a convenient service and retail hub for surrounding communities. The multi-bay layout allows for diversified tenancy and flexible use, making this an attractive option for investors or business owners seeking a well-maintained commercial property in a growing regional market.

Listing Brokerage: REMAX ACA Realty

MAP

Listing data is deemed reliable but is not guaranteed accurate by CREB®. Last updated: today at 3:00 a.m.

© 2026 CENTURY 21 Real Estate Foothills. CENTURY 21® is a registered trademark licensed to Century 21 Real Estate LLC. Equal Housing Opportunity. Each office is independently owned and operated.

Find Real Estate Foothills on Facebook Find Real Estate Foothills on Twitter