3690 36 Street N, Lethbridge   ||   $17,500,000

DETAILS

MLS® NUMBER A2273346
BUILDING TYPE Industrial
PROPERTY CLASS Commercial
YEAR BUILT 2018
BASEMENT None
GARAGE No
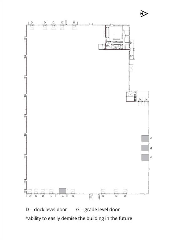
Presenting an exclusive opportunity for an investor to acquire a rarely available 103,788 sf freestanding industrial warehouse building on 6.84 acres, at the corner of 36 Street and 37 Avenue in the heart of the Sherring Industrial Park. The property’s current tenant WG Pro-Manufacturing Inc is a co-pack for one of Lethbridge’s major local food processors. As a large-format single-user of the Outpost Warehouse property, WG Pro-Manufacturing Inc. is a growth business. There are six years of the lease term remaining, with rent increases every two years. The Net Operating Income for the Outpost Warehouse is $1,080,000 (2025). There is the value-add opportunity to increase revenue by up to $75,600 per year through the newly packed gravel parking available on the east side of the building. The extra land has been allocated for up to 42 semi trailers at a rate of $150 per month per stall.
Listing Brokerage: AVISON YOUNG

MAP

Listing data is deemed reliable but is not guaranteed accurate by CREB®. Last updated: today at 3:00 a.m.

© 2026 CENTURY 21 Real Estate Foothills. CENTURY 21® is a registered trademark licensed to Century 21 Real Estate LLC. Equal Housing Opportunity. Each office is independently owned and operated.

Find Real Estate Foothills on Facebook Find Real Estate Foothills on Twitter