Bay C, 4707 51 Avenue , Camrose   ||   $2,300

DETAILS

MLS® NUMBER A2272882
BUILDING TYPE Mixed Use
PROPERTY CLASS Commercial
YEAR BUILT 10000
BASEMENT None
GARAGE No
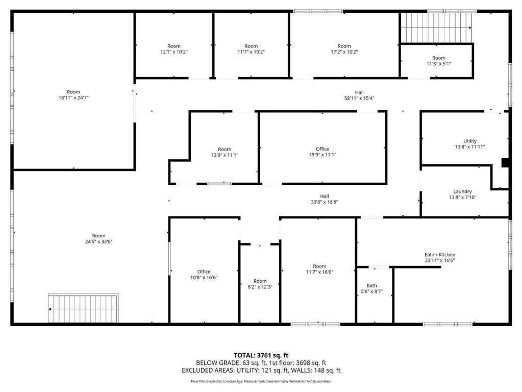
Available Immediately. Large, second floor multi-purpose space for lease. Suitable for small business, professional services, and retail. $2300 per month plus power. Gas & water included. Designed to combine commercial/workspace and residential functions within the same unit. New durable vinyl plank flooring throughout gives the space both a modern and comfortable feel. There is public access from street with employee parking and second entrance from the rear. This ideally located space within the downtown of Camrose offers many work space options. There are 2 large front spaces with expansive windows suitable for reception, show spaces, or open work areas. 7 large multi function office spaces can easily be used as meeting rooms, private offices, or service spaces. Additionally there are 2 storage rooms, a full bath with shower, kitchen, laundry room, and continuous hall to easily connect all spaces.
Listing Brokerage: Coldwell Banker Battle River Realty

MAP

Listing data is deemed reliable but is not guaranteed accurate by CREB®. Last updated: today at 3:00 a.m.

© 2026 CENTURY 21 Real Estate Foothills. CENTURY 21® is a registered trademark licensed to Century 21 Real Estate LLC. Equal Housing Opportunity. Each office is independently owned and operated.

Find Real Estate Foothills on Facebook Find Real Estate Foothills on Twitter