8830 85A Avenue , Grande Prairie   ||   $537,900

DETAILS

MLS® NUMBER A2269943
BUILDING TYPE Detached
PROPERTY CLASS Residential
TOTAL BEDROOMS 3
BATHROOMS 3
HALF BATHS 1
SQUARE FOOTAGE 1735 Square Feet
YEAR BUILT 2025
BASEMENT None
GARAGE Yes
TOTAL PARKING 4
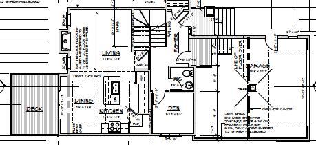
Welcome to this stunning new home in Riverstone, offering modern living at its finest! Featuring 1,735 sq.ft. of beautifully designed space, a double attached garage, $5,000 appliance allowance, and a 12x10 ft deck, this home blends comfort and style perfectly. The open-concept main floor includes a cozy electric fireplace, a bright kitchen with quartz countertops, and a main-floor den and powder room for added convenience. Upstairs, you’ll find a spacious primary suite with a walk-in closet and 5-piece ensuite, plus two additional bedrooms, a bonus room, full bath, and laundry. The basement offers a separate entry and awaits your personal touch. Situated on a generous lot in a family-friendly community close to schools, parks, shopping, and amenities, this home delivers modern elegance and everyday functionality. GST included in price with rebate to builder.
Listing Brokerage: RE/MAX Grande Prairie

MAP

Listing data is deemed reliable but is not guaranteed accurate by CREB®. Last updated: today at 3:00 a.m.

© 2026 CENTURY 21 Real Estate Foothills. CENTURY 21® is a registered trademark licensed to Century 21 Real Estate LLC. Equal Housing Opportunity. Each office is independently owned and operated.

Find Real Estate Foothills on Facebook Find Real Estate Foothills on Twitter