9606 79 Avenue , Peace River   ||   $290,000

DETAILS

MLS® NUMBER A2268919
BUILDING TYPE Detached
PROPERTY CLASS Residential
TOTAL BEDROOMS 3
BATHROOMS 2
SQUARE FOOTAGE 1076 Square Feet
YEAR BUILT 1976
BASEMENT None
GARAGE Yes
TOTAL PARKING 4
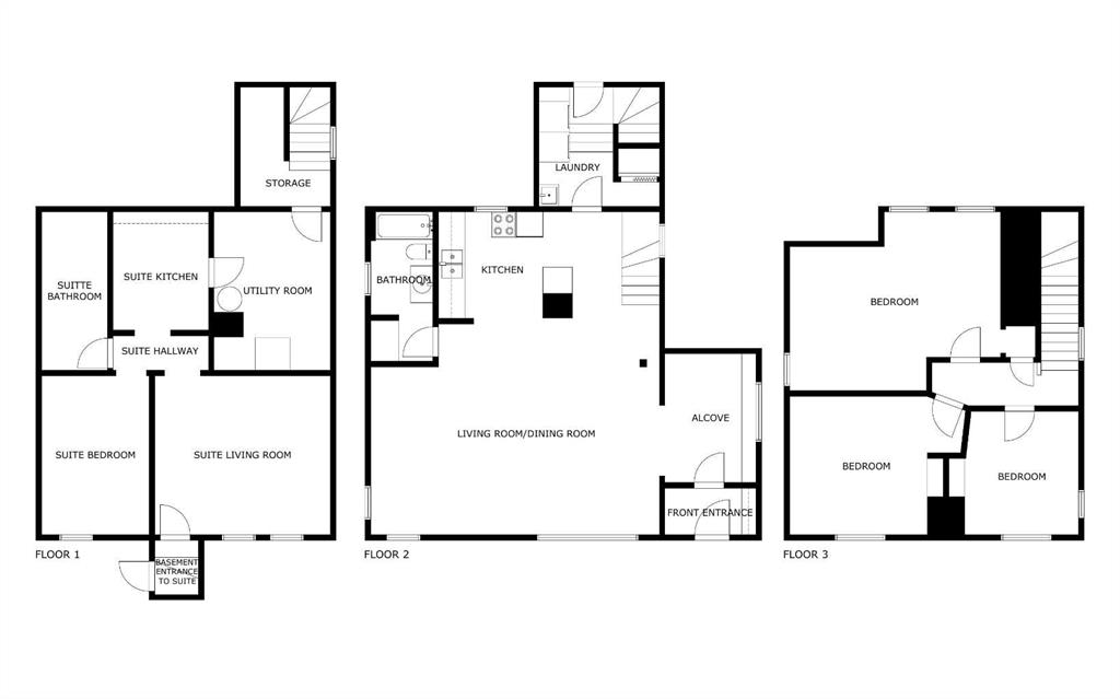
Well cared for home in Peace River\'s North end ready for new owners! This family home is nicely situated on a partially fenced yard. You will also find a double detached garage with floor drain and alley access. Inside the home you will find a freshly painted main level which is nicely set up with a bright eat in kitchen, spacious living room and 3 bedrooms and a 4 piece bathroom on the main level. The basement is complete with a wood burning fireplace in the family room, bonus room which you could continue to use as a games room or you could easily be converted into a 4th bedroom. This level also has a 3 piece bathroom, and a specious laundry room with lots of additional storage. In recent years the windows and doors have been replaced on the upper level and the shingles have been done on the home. Schedule an appointment to take a closer look at all this home has to offer! 360 video tour is now available in the media section. Floor plans are available in the photos section.
Listing Brokerage: RE/MAX Northern Realty

MAP

Listing data is deemed reliable but is not guaranteed accurate by CREB®. Last updated: today at 3:00 a.m.

© 2025 CENTURY 21 Real Estate Foothills. CENTURY 21® is a registered trademark licensed to Century 21 Real Estate LLC. Equal Housing Opportunity. Each office is independently owned and operated.

Find Real Estate Foothills on Facebook Find Real Estate Foothills on Twitter