4608 53 Street , Rycroft   ||   $174,900

DETAILS

MLS® NUMBER A2268198
BUILDING TYPE Detached
PROPERTY CLASS Residential
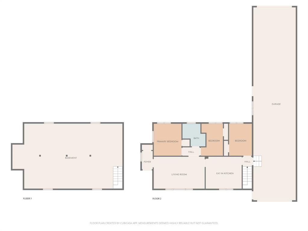
TOTAL BEDROOMS 3
BATHROOMS 1
SQUARE FOOTAGE 960 Square Feet
YEAR BUILT 1955
BASEMENT None
GARAGE Yes
TOTAL PARKING 6
Move-in ready in charming Rycroft! This 3-bedroom, 1-bath bungalow sits on a hugely generous double corner lot, featuring a 70×16-foot attached heated drive-through garage with two doors—your ultimate workshop, toy garage or vehicle storage space. Inside, you’ll find a spacious living room and kitchen with ample cupboard space, and recent upgrades in bathroom incl. flooring and window. Downstairs is laundry plus a large unfinished room—perfect for storage. The west-facing backyard is ideal for evening BBQs and comes with a large, partially fenced yard for ease and versatility. Location matters: Rycroft offers full-service small-town living with a school, library, dance studio, arena, grocery store, hotel and other retail amenities all within reach. Every summer you’ll also find the community coming alive with the signature chuckwagon races and rodeo-style fun. This home is ideal for someone who wants a move-in ready base, huge garage space for hobbies, vehicles or gear, and all the comfort of updates—without the fuss. Don’t miss your chance, call to book your showing today.
Listing Brokerage: eXp Realty

MAP

Listing data is deemed reliable but is not guaranteed accurate by CREB®. Last updated: today at 3:00 a.m.

© 2026 CENTURY 21 Real Estate Foothills. CENTURY 21® is a registered trademark licensed to Century 21 Real Estate LLC. Equal Housing Opportunity. Each office is independently owned and operated.

Find Real Estate Foothills on Facebook Find Real Estate Foothills on Twitter