8604 105 Street , Clairmont   ||   $650,000

DETAILS

MLS® NUMBER A2260173
BUILDING TYPE Industrial Land
PROPERTY CLASS Land
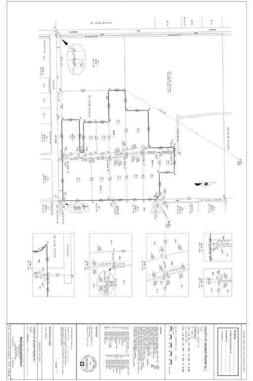
6.05 acres light industrial parcel with all essential services, including municipal water, sanitary sewer, storm sewer, 3-phase power and fibre optic telecommunication services available at the property line. Building construction can be started immediately. This lot is part of phase 1 of the subdivision within “West Clairmont Industrial Park” and is accessible from Bauman Road. This development is close to two major highways, Hwy 42 and Hwy 2.

Listing Brokerage: RE/MAX House of Real Estate

MAP

Listing data is deemed reliable but is not guaranteed accurate by CREB®. Last updated: today at 3:00 a.m.

© 2026 CENTURY 21 Real Estate Foothills. CENTURY 21® is a registered trademark licensed to Century 21 Real Estate LLC. Equal Housing Opportunity. Each office is independently owned and operated.

Find Real Estate Foothills on Facebook Find Real Estate Foothills on Twitter