34 Lakeshore Drive , Grandview   ||   $565,000

DETAILS

MLS® NUMBER A2254788
BUILDING TYPE Detached
PROPERTY CLASS Residential
TOTAL BEDROOMS 3
BATHROOMS 2
SQUARE FOOTAGE 1212 Square Feet
YEAR BUILT 1985
BASEMENT None
GARAGE No
TOTAL PARKING 6
For more information, please click the \"More Information\" button.
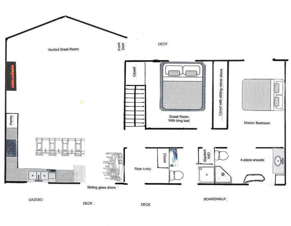
This elevated lot offers wonderful views of Pigeon Lake and is just steps away from the lake access. The warmth and charm of Cedar-lined vaulted ceilings throughout the open concept main living area are showcased by abundant lake-facing windows. Newly renovated 4-season lake house with 4 LG stainless appliances (gas stove) in the kitchen as well as a new stacked washer and dryer on the main floor. A newly built gas fireplace has a live-edge mantle. The guest bedroom fits a king-sized bed and is across from the main bath. The kitchen has new quartz countertops and a big island with seating for four. All windows have blinds. New flooring throughout the main storey, and the basement has carpet. s. South-facing tree-lined backyard offers a firepit with benches and a spacious deck with gazebo. New gas furnace and water heater installed 3 years ago; the roof was done in 2017. The full basement has lots of room for more rooms as you see fit.
Listing Brokerage: Easy List Realty

MAP

Listing data is deemed reliable but is not guaranteed accurate by CREB®. Last updated: today at 3:00 a.m.

© 2026 CENTURY 21 Real Estate Foothills. CENTURY 21® is a registered trademark licensed to Century 21 Real Estate LLC. Equal Housing Opportunity. Each office is independently owned and operated.

Find Real Estate Foothills on Facebook Find Real Estate Foothills on Twitter