103, 10104 97 Avenue , Grande Prairie   ||   $20

DETAILS

MLS® NUMBER A2249607
BUILDING TYPE Office
PROPERTY CLASS Commercial
YEAR BUILT 2001
BASEMENT None
GARAGE No
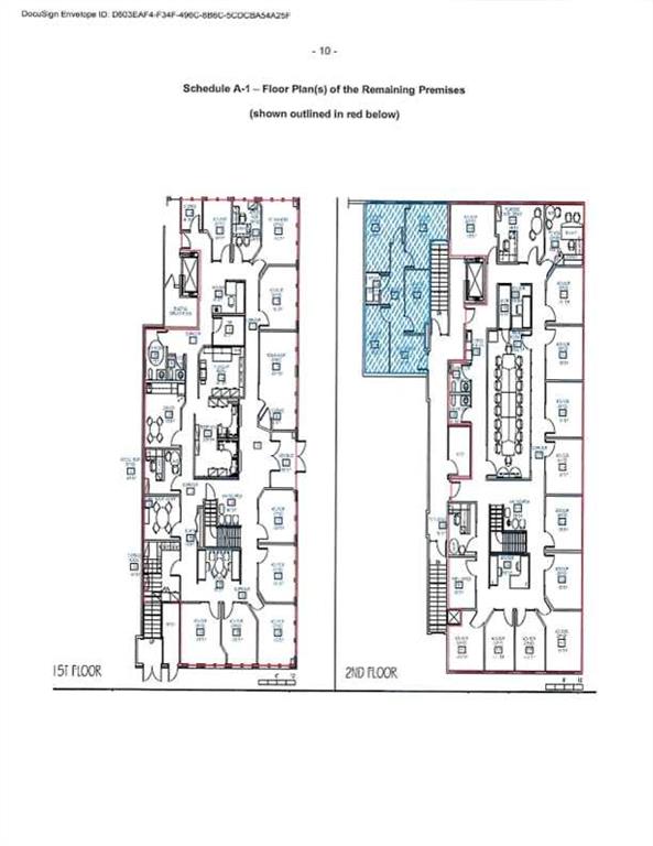
8,137sf of exceptional office space available in the heart of the downtown central business district. This well-designed property offers both main floor and upper level, with elevator and central interior stairway access to the second floor. The layout features 27 private offices - most with large exterior windows, 2 spacious boardrooms, an inviting main floor reception area, 4 washrooms, 2 kitchenettes, several open workspace/waiting/bullpen areas, a mail/copier room, a data room, and storage rooms - providing everything needed for a functional and professional workspace. Ideally suited for professional services, corporate offices, or businesses seeking a strong downtown presence. There is an abundance of parking here with a large city parking lot adjacent to the parking area for this building. NNN Lease: Base rent $13,561.67+ GST. Additional Rent $6,251.36+ GST includes condo fees, taxes. Tenant is responsible for utilities. This space could be divided into separate upper/lower units if desired.
Listing Brokerage: RE/MAX Grande Prairie

MAP

Listing data is deemed reliable but is not guaranteed accurate by CREB®. Last updated: today at 3:00 a.m.

© 2026 CENTURY 21 Real Estate Foothills. CENTURY 21® is a registered trademark licensed to Century 21 Real Estate LLC. Equal Housing Opportunity. Each office is independently owned and operated.

Find Real Estate Foothills on Facebook Find Real Estate Foothills on Twitter